Kitchen Upgrade for Kids

Organization Image

A nonprofit fundraiser supporting

Beyond
Fundraiser image

We need an UPGRADE for our kitchen at HQ for kids to nourish and fuel themselves properly

$11,625

raised by 9 people

$7,500 goal


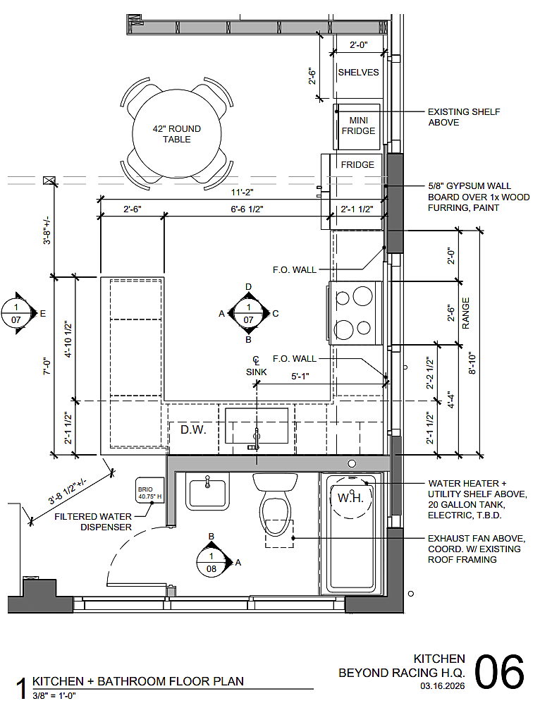
We need your help with our remodel costs to make a kitchen  that kids can use daily to nourish themselves at our Headquarters (HQ) after school. With our inaugural Summer Mountain Bike Camps coming up in June, we need to raise money to upgrade our kitchen to keep these kids fueled and having fun! 


Enhancements that your support will fund include: full kitchen with working stove, expanded cabinets, sink with hot water, dish washer, plus a revamped bathroom with improved electrical and plumbing in that both areas. 


This way kids can come in after school and make themselves a sandwich, heat up leftovers, wash dishes properly, and have a space to share with one another over nourishment. We will use the dishwasher to clean water bottles and camp kitchen equipment after long weekends at races. We will be able to use the kitchen to provide lunch to kids at camp who are unable to bring a sack lunch. 


Here are some rough estimates of costs involved:

- Electrical upgrades $3,500

-Plumbing upgrades and hot water - $2,500

-Expanded and improved cabinets and countertop space - $3,500

-Appliances - $500


We have been fortunate to have most of the appliances already donated. And the majority of the design and execution of the plan has been donated work. Many contractors are also provided us with discounted rates. We are stretching your support as far as it can go! 



This fundraiser supports

organization image

Beyond

Giving Activity

Comments

Log in to leave a comment. Log in